В избранное На сайт О компании Услуги Магазин кровли Контакты Наши работы


Мансардная кровля(теплая крыша) Доступ к разделу платный. Сделать запрос tatka385@yandex.ru Обсуждаем теплые крыши. Виды мансардных материалов, технологии теплой кровли, обзоры, советы и рекомендации

Ответ
 
Опции темы Поиск в этой теме
Старый 16.06.2012, 18:53   #1
cago8og
Новичок
 
Аватар для cago8og
 
Пол: Мужчина
Регистрация: 16.06.2012
Сообщений: 7
Сказал(а) спасибо: 0
Поблагодарили: 0 раз(а)
Репутация: 10

Возможно ли такое?

Здравствуйте! Есть дом из бревен р-р 8х12 м. Пора менять крышу из шифера. Накидал в скечапе вот такой вариант, но не могу на пристрое (где выход на терасу) придумать переход. Планирую гибкую кровлю с подложкой из ОСП. Вопросы еще будут появляться, так как сейчас занимаюсь проектом. Надеюсь у опытных людей не займет много времени ответить на некоторые вопросы. Основное пытаюсь изучить сам.
Миниатюры
Нажмите на изображение для увеличения
Название: 3d model.jpg
Просмотров: 1374
Размер:	89.2 Кб
ID:	6654  
cago8og вне форума   Ответить с цитированием
Старый 16.06.2012, 19:10 Автор темы
  #2
cago8og
Новичок
 
Аватар для cago8og
 
Пол: Мужчина
Регистрация: 16.06.2012
Сообщений: 7
Сказал(а) спасибо: 0
Поблагодарили: 0 раз(а)
Репутация: 10

Re: Возможно ли такое?

Вид фасада. Хочу получить близкие к этим пропорции. В этом случае площадь будет как на 1-м этаже. Высота потолка на мансарде 2.5 м.
Миниатюры
Нажмите на изображение для увеличения
Название: 111.jpg
Просмотров: 1134
Размер:	121.6 Кб
ID:	6655  
cago8og вне форума   Ответить с цитированием
Старый 16.06.2012, 19:13   #3
poison&son
Ветеран сообщества
 
Аватар для poison&son
 
Пол: Мужчина
Регистрация: 19.03.2009
Адрес: Волга да Ока
Сообщений: 2,071
Images: 6
Сказал(а) спасибо: 2,586
Поблагодарили: 832 раз(а)
Репутация: 31841

Re: Возможно ли такое?

А если так
Миниатюры
Нажмите на изображение для увеличения
Название: 3d model правка.jpg
Просмотров: 1091
Размер:	89.2 Кб
ID:	6656  
__________________
above us only sky
poison&son вне форума   Ответить с цитированием
Старый 16.06.2012, 19:21 Автор темы
  #4
cago8og
Новичок
 
Аватар для cago8og
 
Пол: Мужчина
Регистрация: 16.06.2012
Сообщений: 7
Сказал(а) спасибо: 0
Поблагодарили: 0 раз(а)
Репутация: 10

Re: Возможно ли такое?

Спасибо. Если кто-нибудь видит косяки - поправьте пожалуйста на скрине. И еще вопрос в 300 тр я уложусь своими силами без внутренней отделки хотябы?
cago8og вне форума   Ответить с цитированием
Старый 16.06.2012, 19:27   #5
poison&son
Ветеран сообщества
 
Аватар для poison&son
 
Пол: Мужчина
Регистрация: 19.03.2009
Адрес: Волга да Ока
Сообщений: 2,071
Images: 6
Сказал(а) спасибо: 2,586
Поблагодарили: 832 раз(а)
Репутация: 31841

Re: Возможно ли такое?

Цитата:
Сообщение от cago8og Посмотреть сообщение
И еще вопрос в 300 тр я уложусь своими силами
Здесь не коректно поставлен вопрос , слишком много факторов удорожания и наоборот.
Если простенько-простенько ( сколько у вас метров 200) ,... ну наверное влезете.
__________________
above us only sky
poison&son вне форума   Ответить с цитированием
Старый 16.06.2012, 19:33   #6
poison&son
Ветеран сообщества
 
Аватар для poison&son
 
Пол: Мужчина
Регистрация: 19.03.2009
Адрес: Волга да Ока
Сообщений: 2,071
Images: 6
Сказал(а) спасибо: 2,586
Поблагодарили: 832 раз(а)
Репутация: 31841

Re: Возможно ли такое?

Цитата:
Сообщение от cago8og Посмотреть сообщение
Планирую гибкую кровлю
cago8og, тут на форуме полемика продолжается, по поводу как называть, давайте лучше "битумные гонты"
__________________
above us only sky
poison&son вне форума   Ответить с цитированием
Старый 20.06.2012, 22:40 Автор темы
  #7
cago8og
Новичок
 
Аватар для cago8og
 
Пол: Мужчина
Регистрация: 16.06.2012
Сообщений: 7
Сказал(а) спасибо: 0
Поблагодарили: 0 раз(а)
Репутация: 10

Re: Возможно ли такое?

Цитата:
Сообщение от poison&son Посмотреть сообщение
... сколько у вас метров 200
Сразу видно - Профи
Миниатюры
Нажмите на изображение для увеличения
Название: 111.JPG
Просмотров: 1148
Размер:	24.8 Кб
ID:	6670  
cago8og вне форума   Ответить с цитированием
Старый 20.06.2012, 22:42   #8
poison&son
Ветеран сообщества
 
Аватар для poison&son
 
Пол: Мужчина
Регистрация: 19.03.2009
Адрес: Волга да Ока
Сообщений: 2,071
Images: 6
Сказал(а) спасибо: 2,586
Поблагодарили: 832 раз(а)
Репутация: 31841

Re: Возможно ли такое?

Цитата:
Сообщение от cago8og Посмотреть сообщение
Сразу видно - Профи
Вы мне лститеops:
__________________
above us only sky
poison&son вне форума   Ответить с цитированием
Старый 20.06.2012, 22:48 Автор темы
  #9
cago8og
Новичок
 
Аватар для cago8og
 
Пол: Мужчина
Регистрация: 16.06.2012
Сообщений: 7
Сказал(а) спасибо: 0
Поблагодарили: 0 раз(а)
Репутация: 10

Re: Возможно ли такое?

Цитата:
Сообщение от poison&son Посмотреть сообщение
Вы мне лститеops:
Сейчас делаю визуализацию в Аркон и удивился просто как совпало.

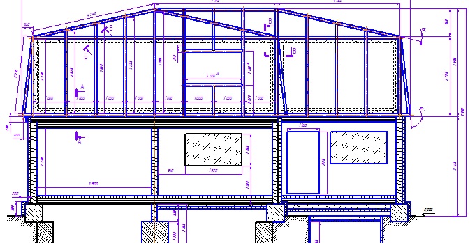
Новый проект будет такой. Стропильная конечно тут неправильно построилась. Кое где кое-что надо добавлять. Уважаемые -подскажите где усилить? Может фермы? Комнату нехочу разбивать.
Миниатюры
Нажмите на изображение для увеличения
Название: 222.jpg
Просмотров: 1417
Размер:	51.1 Кб
ID:	6671  
cago8og вне форума   Ответить с цитированием
Старый 20.06.2012, 22:57   #10
poison&son
Ветеран сообщества
 
Аватар для poison&son
 
Пол: Мужчина
Регистрация: 19.03.2009
Адрес: Волга да Ока
Сообщений: 2,071
Images: 6
Сказал(а) спасибо: 2,586
Поблагодарили: 832 раз(а)
Репутация: 31841

Re: Возможно ли такое?

Цитата:
Сообщение от cago8og Посмотреть сообщение
Кое где кое-что надо добавлять
cago8og, в класической конфигурации мансардной крыши всегда возникает вопрос "Что делать с карнизным выносом".либо делать вылет малым( что не рекомендую), либо выносить достаточно , но при этом свес опускается сильно (порой перекрывая проникновение лучей света в окна верхних этажей), либо ломать скат в зоне мауэрлата. Предусмотрите это сразу . те сейчас.
__________________
above us only sky
poison&son вне форума   Ответить с цитированием
Ответ


Ваши права в разделе
Вы не можете создавать новые темы
Вы не можете отвечать в темах
Вы не можете прикреплять вложения
Вы не можете редактировать свои сообщения

BB коды Вкл.
Смайлы Вкл.
[IMG] код Вкл.
HTML код Выкл.

Быстрый переход


Текущее время: 02:13. Часовой пояс GMT +3.