В избранное На сайт О компании Услуги Магазин кровли Контакты Наши работы


Мансардная кровля(теплая крыша) Доступ к разделу платный. Сделать запрос tatka385@yandex.ru Обсуждаем теплые крыши. Виды мансардных материалов, технологии теплой кровли, обзоры, советы и рекомендации

Ответ
 
Опции темы Поиск в этой теме
Старый 24.11.2013, 17:32   #1
Bornikl
Новичок
 
Пол: Мужчина
Регистрация: 22.04.2013
Сообщений: 7
Сказал(а) спасибо: 1
Поблагодарили: 1 раз
Репутация: 11

Второй свет

Здравствуйте! Пока есть фундамент дома 8,5Х12.5. Между стенами 8м. В1\3 части дома (8мХ4м) хотелось сделать второй свет до стропил без затяжки. Стены дома монолит из опилкобетона по каркасу толщиной 30см. Можно, кстати, выпустить стойки каркаса вверх и прикрепить к ним стропила - как дополнительное крепление. Хотелось бы знать какую систему стропил используют в таком случае. Возможно применение стоек (бабки?) но расстояние до фронтона 4м - это реально. Если использовать подстропильный брус то каких параметров и из чего? Кто может помогите пожалуйста! В интернете про второй свет нет практически ничего!
С уважением.
Bornikl вне форума   Ответить с цитированием
Старый 26.11.2013, 12:16   #2
ben
Ветеран сообщества
 
Аватар для ben
 
Пол: Мужчина
Регистрация: 13.10.2008
Адрес: Украина
Сообщений: 2,414
Images: 8
Сказал(а) спасибо: 419
Поблагодарили: 970 раз(а)
Репутация: 48684

Отправить сообщение для ben с помощью Skype™
Re: Второй свет

А чем затядка мешает? И честно, не поял что такое второй свет
ben вне форума   Ответить с цитированием
Старый 26.11.2013, 13:36   #3
Neewel
Супер консультант
 
Пол: Мужчина
Регистрация: 27.10.2012
Адрес: Никополь
Сообщений: 583
Сказал(а) спасибо: 294
Поблагодарили: 312 раз(а)
Репутация: 34433

Re: Второй свет

Надеюсь Вы тоже нашли все записи о стоимости отопления "второго света" и Вас это устраивает. А так для общего развития тоже посмотрел бы схему стропил
Neewel вне форума   Ответить с цитированием
Старый 26.11.2013, 13:47   #4
family.star
Местная
 
Аватар для family.star
 
Пол: Женщина
Регистрация: 25.03.2013
Сообщений: 402
Сказал(а) спасибо: 327
Поблагодарили: 220 раз(а)
Репутация: 1657

Re: Второй свет

Цитата:
Сообщение от ben Посмотреть сообщение
А чем затядка мешает? И честно, не поял что такое второй свет
Если я правильно поняла автора, то второй свет - это огромные окна по фасаду и фронтону до самой крыши и во внутренней планировке отсутствует межэтажное перекрытие в помещении со "вторым светом".
Когда сама смотрела такие проекты, всегда мучил один вопрос - а как их мыть-то?
family.star вне форума   Ответить с цитированием
Старый 26.11.2013, 14:07   #5
family.star
Местная
 
Аватар для family.star
 
Пол: Женщина
Регистрация: 25.03.2013
Сообщений: 402
Сказал(а) спасибо: 327
Поблагодарили: 220 раз(а)
Репутация: 1657

Re: Второй свет

Нельзя допускать перегрева помещений и слепящего действия солнечных лучей, особенно опасных с юго-западной стороны горизонта, когда воздух за день накаляется, а стены прогреваются. Поэтому нормами установлено, чтобы в зданиях, проектируемых для строительства в районах со среднемесячной температурой июля +21°С и выше, оконные проемы в жилых комнатах и кухнях, обращенных в пределах сектора горизонта 200-290°, были оборудованы наружной регулируемой солнцезащитой. В России - это районы Астраханской, Волгоградской, Ростовской областей, Краснодарского и Ставропольского краев, некоторые другие территории. А для средней полосы России, например, для Московской области, где среднемесячная температура июля +17...+18°С, оборудование оконных проемов, ориентированных на нежелательную юго-западную сторону горизонта, наружными солнцезащитными устройствами не обязательно.
Это цитата из журнала "Идеи вашего дома". А Вы в каком регионе живете?
family.star вне форума   Ответить с цитированием
Старый 26.11.2013, 14:25   #6
VELUXСервис
Супер консультант
 
Аватар для VELUXСервис
 
Пол: Мужчина
Регистрация: 19.02.2013
Адрес: Москва
Сообщений: 700
Сказал(а) спасибо: 221
Поблагодарили: 489 раз(а)
Репутация: 34347

Re: Второй свет

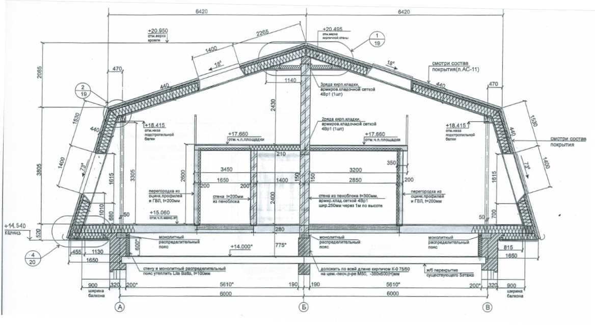
Второй свет - это не обязательно плохо, как тут прозвучало.
Миниатюры
Нажмите на изображение для увеличения
Название: Второй свет.jpg
Просмотров: 1838
Размер:	182.7 Кб
ID:	11084  
VELUXСервис вне форума   Ответить с цитированием
Пользователь сказал cпасибо:
family.star (26.11.2013)
Старый 26.11.2013, 14:51   #7
family.star
Местная
 
Аватар для family.star
 
Пол: Женщина
Регистрация: 25.03.2013
Сообщений: 402
Сказал(а) спасибо: 327
Поблагодарили: 220 раз(а)
Репутация: 1657

Re: Второй свет

Это совсем неплохо, я бы сказала. А с точки зрения дизайна - просто великолепно. Причем, как снаружи, так и изнутри. Ну, а о эксплуатации подумать тоже не вредно.
Кстати(извините, что от темы ушла, можете потом удалить), а на самом деле - как мыть на такой высоте? Или сейчас уже есть какие-то составы пылеотталкивающие? У меня тоже есть высоооокое окно
family.star вне форума   Ответить с цитированием
Старый 26.11.2013, 15:07   #8
VELUXСервис
Супер консультант
 
Аватар для VELUXСервис
 
Пол: Мужчина
Регистрация: 19.02.2013
Адрес: Москва
Сообщений: 700
Сказал(а) спасибо: 221
Поблагодарили: 489 раз(а)
Репутация: 34347

Re: Второй свет

Цитата:
Сообщение от family.star Посмотреть сообщение
... как мыть на такой высоте? Или сейчас уже есть какие-то составы пылеотталкивающие? У меня тоже есть высоооокое окно
Да, такие технологии существуют. Стеклопакет имеет снаружи специальное покрытие, позволяющее стеклу оставаться чистым.
VELUXСервис вне форума   Ответить с цитированием
Старый 26.11.2013, 18:23   #9
Neewel
Супер консультант
 
Пол: Мужчина
Регистрация: 27.10.2012
Адрес: Никополь
Сообщений: 583
Сказал(а) спасибо: 294
Поблагодарили: 312 раз(а)
Репутация: 34433

Re: Второй свет

Цитата:
Сообщение от VELUX Посмотреть сообщение
Второй свет - это не обязательно плохо, как тут прозвучало.
Ваш вариант занесен в сохраненное на случай надобности, но ТС думаю имел другое ввиду, да и по его данным размерам такое соорудить будет в пору только для лилипутов.

p.s. Не помню как называлась тема на форуме, может администрация поможет - там было фото вроде ЖД ангара со стропилкой начала прошлого века, с использованием рельсы вместо "писторы" - может сама идея поможет
Neewel вне форума   Ответить с цитированием
Старый 26.11.2013, 19:59 Автор темы
  #10
Bornikl
Новичок
 
Пол: Мужчина
Регистрация: 22.04.2013
Сообщений: 7
Сказал(а) спасибо: 1
Поблагодарили: 1 раз
Репутация: 11

Re: Второй свет

Всем спасибо за ответы, но ни одного квалифицированного, к сожалению. Отапливать второй свет можно ( и нужно) только тёплыми полами. Как мыть окна - не задумывался, а вот какие окна это вопрос интересный! Конечно можно использовать затяжку, но как-то не хотелось вид вагона над головой в гостиной. Большие окна будут выходить на север, там вид на поле и лес и это проблема тоже - холодно с севера! Буду делать камин в стене по центру, в нём котёл, от него батареи под окна.
Всем спасибо!
Bornikl вне форума   Ответить с цитированием
Пользователь сказал cпасибо:
family.star (26.11.2013)
Ответ


Ваши права в разделе
Вы не можете создавать новые темы
Вы не можете отвечать в темах
Вы не можете прикреплять вложения
Вы не можете редактировать свои сообщения

BB коды Вкл.
Смайлы Вкл.
[IMG] код Вкл.
HTML код Выкл.

Быстрый переход


Текущее время: 23:41. Часовой пояс GMT +3.