В избранное На сайт О компании Услуги Магазин кровли Контакты Наши работы


Семинары по кровле, конференции, выставки, КОНКУРСЫ Обучение кровельному мастерству. Анонсы предстоящих событий, отзывы о прошедших.

Ответ
 
Опции темы Поиск в этой теме
Старый 03.05.2017, 11:51   #1
Наталья
Informator
 
Аватар для Наталья
 
Регистрация: 02.11.2010
Сообщений: 575
Images: 1
Сказал(а) спасибо: 177
Поблагодарили: 502 раз(а)
Репутация: 31346

Россия на кровельном чемпионате в Риге

1-ая Международная выставка «Крыши и стены 2017» и очередной Чемпионат профессиональных кровельщиков и монтажников фасадов BaltRoof состоятся 19-20 мая 2017 г. в Риге в Международном выставочном центре Кипсала. К участию приглашены и россияне. Заявки принимаются до 5 мая.

Первый чемпионат BaltRoof состоялся в 2012 г. в Латвии. В 2016 г. на соревнованиях, которые проходили в Эстонии, впервые приняли участие две команды из России. Были сформированы две команды от Национального кровельного союза России - в номинации «Плоская крыша» соревновались специалисты компании «Веста» («УНИТЕХ ГРУПП», Тюмень), а в номинации «Металлическая фальцевая кровля» - «РуфМед», Москва.



В 2017 году соревнования пройдут в Риге в Международном выставочном центре Кипсала 19 и 20 мая и будут приурочены к 1-й Международной выставке «Крыши и стены 2017».

Соревнования проводятся по правилам Международной федерации кровельщиков (IFD) в трёх номинациях:
  1. «Металлическая фальцевая кровля»
  2. «Кровля из черепицы»
  3. «Плоская крыша»
  4. «Монтаж вентилируемых фасадов»
Участие принимают команды из стран Прибалтики. Каждая команда состоит из трех человек - двух соревнующихся кровельщиков и одного наставника. По правилам наставники должны оставаться вне границ зоны проведения соревнования, им не позволяется помогать участникам выполнять рабочие операции, можно только давать устно советы, подсказки.

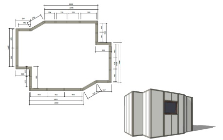
Задания соревнований этого года











Миниатюры
Нажмите на изображение для увеличения
Название: jumti_sienas_kroi_ru.jpg
Просмотров: 1337
Размер:	6.6 Кб
ID:	19800   Нажмите на изображение для увеличения
Название: jumti_sienas_kroi_ru1.jpg
Просмотров: 1410
Размер:	25.6 Кб
ID:	19801   Нажмите на изображение для увеличения
Название: jumti_sienas_kroi_ru2.jpg
Просмотров: 1417
Размер:	18.4 Кб
ID:	19802   Нажмите на изображение для увеличения
Название: jumti_sienas_kroi_ru3.jpg
Просмотров: 1432
Размер:	18.7 Кб
ID:	19803   Нажмите на изображение для увеличения
Название: jumti_sienas_kroi_ru4.jpg
Просмотров: 1375
Размер:	76.1 Кб
ID:	19804  

Нажмите на изображение для увеличения
Название: jumti_sienas_kroi_ru5.jpg
Просмотров: 1229
Размер:	78.3 Кб
ID:	19805  
__________________
Акция!!! Реклама на этом форуме по сниженной цене.
ПОДРОБНЕЕ ЗДЕСЬ. ЖМИ!
Наталья вне форума   Ответить с цитированием
3 пользователя(ей) сказали cпасибо:
DRAGOFOL (03.05.2017), Lex (04.05.2017), Sunduk (13.05.2017)
Ответ


Ваши права в разделе
Вы не можете создавать новые темы
Вы не можете отвечать в темах
Вы не можете прикреплять вложения
Вы не можете редактировать свои сообщения

BB коды Вкл.
Смайлы Вкл.
[IMG] код Вкл.
HTML код Выкл.

Быстрый переход


Текущее время: 02:56. Часовой пояс GMT +3.