В избранное На сайт О компании Услуги Магазин кровли Контакты Наши работы


Наша работа Описание и фото выполненных работ и дискуссии на свежие темы.

Ответ
 
Опции темы Поиск в этой теме
Старый 07.05.2014, 15:31   #1
ben
Ветеран сообщества
 
Аватар для ben
 
Пол: Мужчина
Регистрация: 13.10.2008
Адрес: Украина
Сообщений: 2,414
Images: 8
Сказал(а) спасибо: 419
Поблагодарили: 970 раз(а)
Репутация: 48684

Отправить сообщение для ben с помощью Skype™
Гараж

Вот такой гаражик выстрельнул.
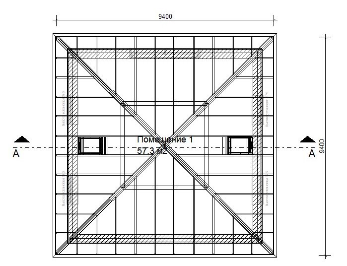
Здание в плане квадратное 8400х8400. Крыша шатровая, угол 32 град., материалом выступит бетонная черепица "двойная римская" нашего производителя Торговый дом "Аляска". Цвет терракотовый
Стропильная система:
Сосна. Стропила 60х200 мм, мауэрлат 150х100, ребровые ноги 120х200, прогоны 100х100, стойки 100х100. Обрешетник 50х50, контр.рейка 30х50.
Мембрана Wabis Egometal, Schaum-band, Multi-band прилагаются. Водосток Galeco пластиковая, цвет медь.
Предусмотрено утепление 200 мм мин.ватой, пароизоляция Budfol.
2 мансардных окна Velux GZL 1059D М06.
В общем такой себе домик "антикризисное предложение".
Начало работ планируется на 19-е число. Работы будет выполнять Владимир.
Миниатюры
Нажмите на изображение для увеличения
Название: 01.jpg
Просмотров: 1445
Размер:	52.4 Кб
ID:	12654   Нажмите на изображение для увеличения
Название: 02.jpg
Просмотров: 1585
Размер:	52.7 Кб
ID:	12655   Нажмите на изображение для увеличения
Название: стропила.jpg
Просмотров: 1341
Размер:	68.2 Кб
ID:	12656  
ben вне форума   Ответить с цитированием
4 пользователя(ей) сказали cпасибо:
Lex (08.05.2014), poison&son (07.05.2014), Вова (08.05.2014), Клямер (07.05.2014)
Старый 01.07.2014, 08:27   #2
Вова
Ученик
 
Аватар для Вова
 
Пол: Мужчина
Регистрация: 17.08.2013
Адрес: Nikolaev, Ukraine
Сообщений: 102
Сказал(а) спасибо: 78
Поблагодарили: 141 раз(а)
Репутация: 8496

Отправить сообщение для Вова с помощью Skype™
Re: Гараж

в процессе выполнения сборки стропильной части использовал новый инструмент HILTI SIW 22A. Доволен.
Миниатюры
Нажмите на изображение для увеличения
Название: DSCN0761.jpg
Просмотров: 1599
Размер:	71.6 Кб
ID:	12967   Нажмите на изображение для увеличения
Название: DSCN1079.jpg
Просмотров: 1618
Размер:	82.0 Кб
ID:	12968   Нажмите на изображение для увеличения
Название: DSCN1085.jpg
Просмотров: 1593
Размер:	145.7 Кб
ID:	12969   Нажмите на изображение для увеличения
Название: DSCN1101.jpg
Просмотров: 1440
Размер:	76.1 Кб
ID:	12970  
Вова вне форума   Ответить с цитированием
3 пользователя(ей) сказали cпасибо:
Alex11 (01.07.2014), poison&son (02.07.2014), камран (01.07.2014)
Старый 01.07.2014, 08:31   #3
Alex11
Ученик
 
Аватар для Alex11
 
Пол: Мужчина
Регистрация: 28.05.2014
Адрес: Москва, Троицк
Сообщений: 144
Сказал(а) спасибо: 173
Поблагодарили: 34 раз(а)
Репутация: 625

Re: Гараж

хороший гаражик, скромный ))))
Alex11 вне форума   Ответить с цитированием
Старый 01.07.2014, 08:34   #4
Вова
Ученик
 
Аватар для Вова
 
Пол: Мужчина
Регистрация: 17.08.2013
Адрес: Nikolaev, Ukraine
Сообщений: 102
Сказал(а) спасибо: 78
Поблагодарили: 141 раз(а)
Репутация: 8496

Отправить сообщение для Вова с помощью Skype™
Re: Гараж

Доволен.
Миниатюры
Нажмите на изображение для увеличения
Название: DSCN1088.jpg
Просмотров: 1557
Размер:	84.1 Кб
ID:	12971   Нажмите на изображение для увеличения
Название: DSCN1009.jpg
Просмотров: 1360
Размер:	131.1 Кб
ID:	12972   Нажмите на изображение для увеличения
Название: DSCN1059.jpg
Просмотров: 1408
Размер:	82.7 Кб
ID:	12973  
Вова вне форума   Ответить с цитированием
3 пользователя(ей) сказали cпасибо:
Alex11 (01.07.2014), poison&son (02.07.2014), камран (01.07.2014)
Старый 01.07.2014, 08:38   #5
Alex11
Ученик
 
Аватар для Alex11
 
Пол: Мужчина
Регистрация: 28.05.2014
Адрес: Москва, Троицк
Сообщений: 144
Сказал(а) спасибо: 173
Поблагодарили: 34 раз(а)
Репутация: 625

Re: Гараж

можно там жилую мансарду сделать, для охраны...., или для огромной собаки)))
Alex11 вне форума   Ответить с цитированием
Старый 01.07.2014, 08:40   #6
Alex11
Ученик
 
Аватар для Alex11
 
Пол: Мужчина
Регистрация: 28.05.2014
Адрес: Москва, Троицк
Сообщений: 144
Сказал(а) спасибо: 173
Поблагодарили: 34 раз(а)
Репутация: 625

Re: Гараж

Вова, если не трудно, скинь фотки монтажа черепицы!
Заранее благодарен.
Alex11 вне форума   Ответить с цитированием
Старый 01.07.2014, 09:43   #7
Alex11
Ученик
 
Аватар для Alex11
 
Пол: Мужчина
Регистрация: 28.05.2014
Адрес: Москва, Троицк
Сообщений: 144
Сказал(а) спасибо: 173
Поблагодарили: 34 раз(а)
Репутация: 625

Re: Гараж

ben, а что за пароизоляционная пленка, кто производитель? (и Ваш отзыв о ней)
Alex11 вне форума   Ответить с цитированием
Старый 02.07.2014, 13:41 Автор темы
  #8
ben
Ветеран сообщества
 
Аватар для ben
 
Пол: Мужчина
Регистрация: 13.10.2008
Адрес: Украина
Сообщений: 2,414
Images: 8
Сказал(а) спасибо: 419
Поблагодарили: 970 раз(а)
Репутация: 48684

Отправить сообщение для ben с помощью Skype™
Re: Гараж

Это Budfol от Foliarex. Просто выпускается под брендом Blachi Pruszynski
http://www.pruszynski.com.ua/. С этой пленкой работаем довольно давно, где-то с 2007-го года. Нареканий не было. Правда до 2009-го она двухслойная была (наверное такая и осталась в Польше), а сейчас плотность где-то 100 г/м.кв. Но в принципе достойная
ben вне форума   Ответить с цитированием
Пользователь сказал cпасибо:
Alex11 (02.07.2014)
Старый 02.07.2014, 13:44 Автор темы
  #9
ben
Ветеран сообщества
 
Аватар для ben
 
Пол: Мужчина
Регистрация: 13.10.2008
Адрес: Украина
Сообщений: 2,414
Images: 8
Сказал(а) спасибо: 419
Поблагодарили: 970 раз(а)
Репутация: 48684

Отправить сообщение для ben с помощью Skype™
Re: Гараж

Цитата:
Сообщение от Alex11 Посмотреть сообщение
можно там жилую мансарду сделать, для охраны...., или для огромной собаки)))
Там изначально планируется склад ненужных вещей, но я заложил параметры, чтобы получилась полноценная мансарда. Думаю после внутрянки клиент к этому прийдет сам))
ben вне форума   Ответить с цитированием
Старый 02.07.2014, 15:29   #10
Alex11
Ученик
 
Аватар для Alex11
 
Пол: Мужчина
Регистрация: 28.05.2014
Адрес: Москва, Троицк
Сообщений: 144
Сказал(а) спасибо: 173
Поблагодарили: 34 раз(а)
Репутация: 625

Re: Гараж

Цитата:
Сообщение от ben Посмотреть сообщение
Там изначально планируется склад ненужных вещей, но я заложил параметры, чтобы получилась полноценная мансарда. Думаю после внутрянки клиент к этому прийдет сам))
Здорово, думаю в дальнейшем человек будет тебя вспоминать добрым словом!
Alex11 вне форума   Ответить с цитированием
Пользователь сказал cпасибо:
ben (02.07.2014)
Ответ


Ваши права в разделе
Вы не можете создавать новые темы
Вы не можете отвечать в темах
Вы не можете прикреплять вложения
Вы не можете редактировать свои сообщения

BB коды Вкл.
Смайлы Вкл.
[IMG] код Вкл.
HTML код Выкл.

Быстрый переход


Текущее время: 03:10. Часовой пояс GMT +3.