В избранное На сайт О компании Услуги Магазин кровли Контакты Наши работы


Все о кровельных материалах Обсуждение кровельных материалов, помощь в выборе, опыт использования, качество, стоимость, производители, отзывы, варианты дизайна, новинки кровельного рынка

Ответ
 
Опции темы Поиск в этой теме
Старый 21.11.2011, 10:07   #21
Клямер
Ветеран сообщества
 
Аватар для Клямер
 
Регистрация: 19.02.2010
Сообщений: 2,581
Сказал(а) спасибо: 770
Поблагодарили: 1,521 раз(а)
Репутация: 26806

Re: Кровельные пироги

Цитата:
Сообщение от пензатайл Посмотреть сообщение
Мембрана обрывается на середине глубины карнизного свеса. Воздух попадает через перфорированные алюминиевые софиты. Данную ересь считаю правильной, к тому же она присутствует в техальбоме ТехноНИКОЛЬ. В своих учебных центрах ТЕПЕРЬ УЖЕ они рекомендуют что так будет намного лучше, чем доводить мембрану до конца кобылки, при этом воздух будет поступать уже только через подкровельное пространство (через вентсетку закрепленную на контрбрус).... потом монтируется водосточный желоб, выпадает снег... и вентиляции вообще нет
Да будет вам известно , пензатайл, что в те давние давние годы когда Технониколь ещё не имел никакого отношения к Shinglas, а занимался выпуском только рулонных материалов для наплавляемой кровли, он уже начинал выпускать кровельную битумную плитку под своим "брендом" на заводе в Прибалтике....в ассортименте аж 5 цветов, и если мне не изменяет память 3х форм. Тогда же начали появляться его рекомендации по применению.....ещё на зачаточном уровне маленького буклетика.
Так вот первичные консультации по рекомендациям ( ) проводили рязанские же кровельщики из одной достаточно опытной фирмы, имеющей к тому времени достаточный опыт монтажа кровель.
Но и они к тому времени ещё не имели необходимого понимания тонкостей монтажа подкровельных плёнок ...тем более понимания аэродинамических процессов, происходящих в кровле....да и не зачем тогда им это было понимать.
Но уже тогда в рязанской около кровельной среде велись споры о возможных проблемах, возникающих по причине заваливания снегом входного контура вентиляции над желобами ( на тот момент именно у БРААС .... из доступных ...была подобная схема). И версия с обрывом гидроизоляционного слоя в середине карнизного свеса обсуждалась уже тогда (лет 8-10 назад)
То бишь "новым разработкам" ТехноНиколь минул уж как 8-ой год ....как минимум.

Великий же "секрет" ,ну скажем Дёркен...(я думаю DRAGFOL меня поправит, если я не прав ) решения данной проблемы заключается в угле спила карнизного выноса стропил - перпендикуляр к плоскости ската, а не вертикаль.

И пилить , извиняюсь, меньше ...и необходимый входной незаваливаемый снегом зазор под желобом образуется практически автоматически при постановке крюков в/ст системы на обрешётку.

Вот такая вот история.....

Последний раз редактировалось Клямер; 21.11.2011 в 10:15.
Клямер вне форума   Ответить с цитированием
Пользователь сказал cпасибо:
poison&son (21.12.2014)
Старый 21.11.2011, 10:13 Автор темы
  #22
ПЕНЗАТАЙЛЪ
Ветеран сообщества
 
Аватар для ПЕНЗАТАЙЛЪ
 
Пол: Мужчина
Регистрация: 28.09.2011
Адрес: www.пензатайл.рф
Сообщений: 3,183
Сказал(а) спасибо: 11
Поблагодарили: 128 раз(а)
Репутация: 6225

Re: Кровельные пироги

Какой спил? На кой это нужно! Фото узла есть? Что-то я не понимаю

ПС. Какая разницы кто этот узел придумал и когда. Важно, чтобы функциональность кровельного узла была достигнута (хотя бы оптимальная).
ПЕНЗАТАЙЛЪ вне форума   Ответить с цитированием
Старый 21.11.2011, 10:28   #23
Клямер
Ветеран сообщества
 
Аватар для Клямер
 
Регистрация: 19.02.2010
Сообщений: 2,581
Сказал(а) спасибо: 770
Поблагодарили: 1,521 раз(а)
Репутация: 26806

Re: Кровельные пироги

Цитата:
Сообщение от пензатайл Посмотреть сообщение
Какой спил? На кой это нужно! Фото узла есть? Что-то я не понимаю
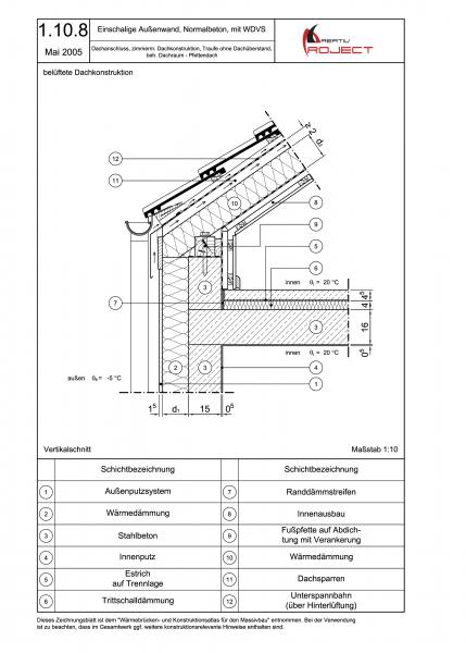
LKF-TV01-01 альбома Дёркен..... и LWF-TV01-01 тамже

Конечно не важно, кто был первым...
Важно что уже тогда эта версия не понравилась, в связи с возможностью попадания воды (сосульки зимой , торчащие из карнизных свесов) внутрь короба карнизного свеса.

Последний раз редактировалось Клямер; 21.11.2011 в 10:36.
Клямер вне форума   Ответить с цитированием
Старый 21.11.2011, 10:51 Автор темы
  #24
ПЕНЗАТАЙЛЪ
Ветеран сообщества
 
Аватар для ПЕНЗАТАЙЛЪ
 
Пол: Мужчина
Регистрация: 28.09.2011
Адрес: www.пензатайл.рф
Сообщений: 3,183
Сказал(а) спасибо: 11
Поблагодарили: 128 раз(а)
Репутация: 6225

Re: Кровельные пироги

Цитата:
Сообщение от Клямер Посмотреть сообщение
LKF-TV01-01 альбома Дёркен..... и LWF-TV01-01 тамже

Конечно не важно, кто был первым...
Важно что уже тогда эта версия не понравилась, в связи с возможностью попадания воды (сосульки зимой , торчащие из карнизных свесов) внутрь короба карнизного свеса.
Первый узел - даже не рассматривается (это двухконтурная вентиляция).
Второй узел - желательно доработать и разорвать пленку на карнизе и подшить карниз софитом перфорированным. Тогда приток воздуха будет больше. А чтобы не было турбулентности нужно не забывать правило: "Площадь вытяжных отверстий должна быть больше, чем приточных!"

ПС. У нас пока таких сосулек не наблюдается, вода с софита тоже не капает. Да и по сути откуда ей там взяться, при хорошей тяге - конденсат распадается на молекулы и улетает в космос
ПЕНЗАТАЙЛЪ вне форума   Ответить с цитированием
Старый 21.11.2011, 11:03 Автор темы
  #25
ПЕНЗАТАЙЛЪ
Ветеран сообщества
 
Аватар для ПЕНЗАТАЙЛЪ
 
Пол: Мужчина
Регистрация: 28.09.2011
Адрес: www.пензатайл.рф
Сообщений: 3,183
Сказал(а) спасибо: 11
Поблагодарили: 128 раз(а)
Репутация: 6225

Re: Кровельные пироги

Честно говоря, незнал про этот узел, видимо просмотрел в свое время его когда изучал пироги Деркена. Надо выполнить такой узел на нашем зимнем объекте и сделать фото (выложу в январе-феврале). Если все будет гут, надо изменить наши узлы для проектов и рекомендовать всем именно такой узел... с моими доработками!

ПС. Благодарю Кляммера!
ПЕНЗАТАЙЛЪ вне форума   Ответить с цитированием
Старый 22.11.2011, 00:09   #26
DRAGOFOL
Супер консультант
 
Аватар для DRAGOFOL
 
Регистрация: 11.11.2011
Сообщений: 1,736
Images: 24
Сказал(а) спасибо: 1,124
Поблагодарили: 970 раз(а)
Репутация: 40367

Re: Кровельные пироги

Работоспособными могут быть самые разнообразные конструкции карнизных свесов. Не принципиально, как обрезаются концы стропильных ног - по отвесу или перпендикулярно плоскости ската (стропил).
Это зависит от варианта и материала подшивки.
Главное - надёжное попадание воздуха в вентзазор. Это как раз обеспечивает верхнее расположение жёлоба (над контриком).
Поддержу Клямера - конструкция LWF-TV01-01 подтверждает надёжность в наших климатических условиях уже лет 15.

И полностью согласен с Пензатайл, что "Важно, чтобы функциональность кровельного узла была достигнута (хотя бы оптимальная)".

Выкладываю несколько вариантов карнизных свесов.
К сожалению, не получается разместить рисунки нормальных размеров.
Миниатюры
Нажмите на изображение для увеличения
Название: LWF-TV01-01-PT.jpg
Просмотров: 1198
Размер:	90.1 Кб
ID:	3626   Нажмите на изображение для увеличения
Название: Dach5.jpg
Просмотров: 1186
Размер:	39.7 Кб
ID:	3627   Нажмите на изображение для увеличения
Название: Свес с нижней кровлей и вр жёлобом 2.gif
Просмотров: 1222
Размер:	10.3 Кб
ID:	3628   Нажмите на изображение для увеличения
Название: Свес чердака с USB и dekorplatte.gif
Просмотров: 1189
Размер:	14.7 Кб
ID:	3629  
DRAGOFOL вне форума   Ответить с цитированием
Старый 25.11.2011, 13:12   #27
ben
Ветеран сообщества
 
Аватар для ben
 
Пол: Мужчина
Регистрация: 13.10.2008
Адрес: Украина
Сообщений: 2,414
Images: 8
Сказал(а) спасибо: 419
Поблагодарили: 970 раз(а)
Репутация: 48684

Отправить сообщение для ben с помощью Skype™
Re: Кровельные пироги

Последний вариант как раз и заваливает снегом
ben вне форума   Ответить с цитированием
Старый 25.11.2011, 16:55   #28
DRAGOFOL
Супер консультант
 
Аватар для DRAGOFOL
 
Регистрация: 11.11.2011
Сообщений: 1,736
Images: 24
Сказал(а) спасибо: 1,124
Поблагодарили: 970 раз(а)
Репутация: 40367

Re: Кровельные пироги

Да, верхний зазор звалит, зато нижний будет гарантированно свободным.Я выложил этот рисунок именно ради защищённого питока воздуха через вертикальный канал.

Мы рекомендуем всегда устанавливать высокорасположенный водослив.
DRAGOFOL вне форума   Ответить с цитированием
Ответ


Ваши права в разделе
Вы не можете создавать новые темы
Вы не можете отвечать в темах
Вы не можете прикреплять вложения
Вы не можете редактировать свои сообщения

BB коды Вкл.
Смайлы Вкл.
[IMG] код Вкл.
HTML код Выкл.

Быстрый переход


Текущее время: 09:34. Часовой пояс GMT +3.