В избранное На сайт О компании Услуги Магазин кровли Контакты Наши работы


Мансардная кровля(теплая крыша) Доступ к разделу платный. Сделать запрос tatka385@yandex.ru Обсуждаем теплые крыши. Виды мансардных материалов, технологии теплой кровли, обзоры, советы и рекомендации

Ответ
 
Опции темы Поиск в этой теме
Старый 11.04.2015, 20:06 Автор темы
  #51
vovhik74
Супер консультант
 
Пол: Мужчина
Регистрация: 13.12.2011
Адрес: Челябинск
Сообщений: 802
Images: 13
Сказал(а) спасибо: 531
Поблагодарили: 564 раз(а)
Репутация: 33971

Re: Мансарда. Вальма. Челябинск.

VELUXСервис, может Вы подскажите как в данном проекте в 6.5 метров установить 3 окна без потери несущей способности стропильной системы?
vovhik74 вне форума   Ответить с цитированием
Старый 11.04.2015, 20:31   #52
Клямер
Ветеран сообщества
 
Аватар для Клямер
 
Регистрация: 19.02.2010
Сообщений: 2,581
Сказал(а) спасибо: 770
Поблагодарили: 1,521 раз(а)
Репутация: 26806

Re: Мансарда. Вальма. Челябинск.

Цитата:
Сообщение от VELUXСервис Посмотреть сообщение
Не мог пройти мимо столь "крамольной" фразы.
Почему не стали бы опускать ниже? Что я пропустил?
vovhik74, окна уже куплены?
Это не фраза крамольная - это ситуация скользкая....

Что предложить заказчику: возможность относительно удобно выглянуть в открытое окно, или возможность получить створкой по голове...

Окна то выбраны центральноповоротные(да ещё тяжёлые) - осюда высота под точкой поворота(центр окна) 1,8-1,9метра
Клямер вне форума   Ответить с цитированием
Старый 11.04.2015, 20:35   #53
VELUXСервис
Супер консультант
 
Аватар для VELUXСервис
 
Пол: Мужчина
Регистрация: 19.02.2013
Адрес: Москва
Сообщений: 700
Сказал(а) спасибо: 221
Поблагодарили: 489 раз(а)
Репутация: 34347

Re: Мансарда. Вальма. Челябинск.

Цитата:
Сообщение от vovhik74 Посмотреть сообщение
Думаю он имел ввиду высоту установки.
Это я понял. Но не понял, почему нельзя поставить окно ниже.
Если вопрос в "центральной" оси, почему бы не поставить комбинированное открывание (GPL, например, или GHL)?
Цитата:
Сообщение от vovhik74 Посмотреть сообщение
Но я сейчас действительно задумался на счёт вырезки 3 окон. Нужно просчитать нагрузки. Поскольку я понимаю вырезка нескольких окон ослабляет стропильную конструкцию.
Если вопрос в нагрузке, то поставьте 3 окна меньшего размера (например, Р06, М08 или М06).
VELUXСервис вне форума   Ответить с цитированием
Пользователь сказал cпасибо:
vovhik74 (12.04.2015)
Старый 11.04.2015, 20:35   #54
Клямер
Ветеран сообщества
 
Аватар для Клямер
 
Регистрация: 19.02.2010
Сообщений: 2,581
Сказал(а) спасибо: 770
Поблагодарили: 1,521 раз(а)
Репутация: 26806

Re: Мансарда. Вальма. Челябинск.

Цитата:
Сообщение от vovhik74 Посмотреть сообщение
Поскольку я понимаю вырезка нескольких окон ослабляет стропильную конструкцию.
При двухсотой стропилке у вас запас двукратный по прогибу. Если страшно - стропила опорные для окон сдваиваете и всё будет Ок. У меня эта модель(те жеразмеры) уже 2года отстояла на 150ой стропилке - смотрел напрошлой неделе: прогиба нет.
Клямер вне форума   Ответить с цитированием
Пользователь сказал cпасибо:
vovhik74 (12.04.2015)
Старый 11.04.2015, 20:36   #55
VELUXСервис
Супер консультант
 
Аватар для VELUXСервис
 
Пол: Мужчина
Регистрация: 19.02.2013
Адрес: Москва
Сообщений: 700
Сказал(а) спасибо: 221
Поблагодарили: 489 раз(а)
Репутация: 34347

Re: Мансарда. Вальма. Челябинск.

Цитата:
Сообщение от Клямер Посмотреть сообщение
возможность относительно удобно выглянуть в открытое окно, или возможность получить створкой по голове...
Ха... А совместить удобство и вид = GPL?
VELUXСервис вне форума   Ответить с цитированием
Старый 11.04.2015, 20:44   #56
VELUXСервис
Супер консультант
 
Аватар для VELUXСервис
 
Пол: Мужчина
Регистрация: 19.02.2013
Адрес: Москва
Сообщений: 700
Сказал(а) спасибо: 221
Поблагодарили: 489 раз(а)
Репутация: 34347

Re: Мансарда. Вальма. Челябинск.

Цитата:
Сообщение от vovhik74 Посмотреть сообщение
как в данном проекте в 6.5 метров установить 3 окна без потери несущей способности стропильной системы?
2 окна P08 весят примерно 104 кг (~52*2)
3 окна М06 - 114 кг (~38*3)
Это GGL
VELUXСервис вне форума   Ответить с цитированием
Старый 11.04.2015, 20:56   #57
Клямер
Ветеран сообщества
 
Аватар для Клямер
 
Регистрация: 19.02.2010
Сообщений: 2,581
Сказал(а) спасибо: 770
Поблагодарили: 1,521 раз(а)
Репутация: 26806

Re: Мансарда. Вальма. Челябинск.

Цитата:
Сообщение от VELUXСервис Посмотреть сообщение
Ха... А совместить удобство и вид = GPL?
Можно конечно модель сменить и выиграть около 40см по высоте обреза окна, только стенка под окном станет порядка 50-60см - не стол ни кровать не поставить...только конвектора (батареи) узкие и влезут.
Тоже как бы не фонтан.33 градуса кровля однако...
Клямер вне форума   Ответить с цитированием
Старый 11.04.2015, 21:02 Автор темы
  #58
vovhik74
Супер консультант
 
Пол: Мужчина
Регистрация: 13.12.2011
Адрес: Челябинск
Сообщений: 802
Images: 13
Сказал(а) спасибо: 531
Поблагодарили: 564 раз(а)
Репутация: 33971

Re: Мансарда. Вальма. Челябинск.

Цитата:
Сообщение от VELUXСервис Посмотреть сообщение
Ха... А совместить удобство и вид = GPL?
Стоп. Разница в 13 т.р за окно я не потяну!
vovhik74 вне форума   Ответить с цитированием
Старый 11.04.2015, 21:04 Автор темы
  #59
vovhik74
Супер консультант
 
Пол: Мужчина
Регистрация: 13.12.2011
Адрес: Челябинск
Сообщений: 802
Images: 13
Сказал(а) спасибо: 531
Поблагодарили: 564 раз(а)
Репутация: 33971

Re: Мансарда. Вальма. Челябинск.

Цитата:
Сообщение от Клямер Посмотреть сообщение
Можно конечно модель сменить и выиграть около 40см по высоте обреза окна, только стенка под окном станет порядка 50-60см - не стол ни кровать не поставить...только конвектора (батареи) узкие и влезут.
Тоже как бы не фонтан.33 градуса кровля однако...
Скорее всего будет тёплый пол. Батарей не будет.
vovhik74 вне форума   Ответить с цитированием
Старый 11.04.2015, 21:04   #60
Клямер
Ветеран сообщества
 
Аватар для Клямер
 
Регистрация: 19.02.2010
Сообщений: 2,581
Сказал(а) спасибо: 770
Поблагодарили: 1,521 раз(а)
Репутация: 26806

Re: Мансарда. Вальма. Челябинск.

Цитата:
Сообщение от vovhik74 Посмотреть сообщение
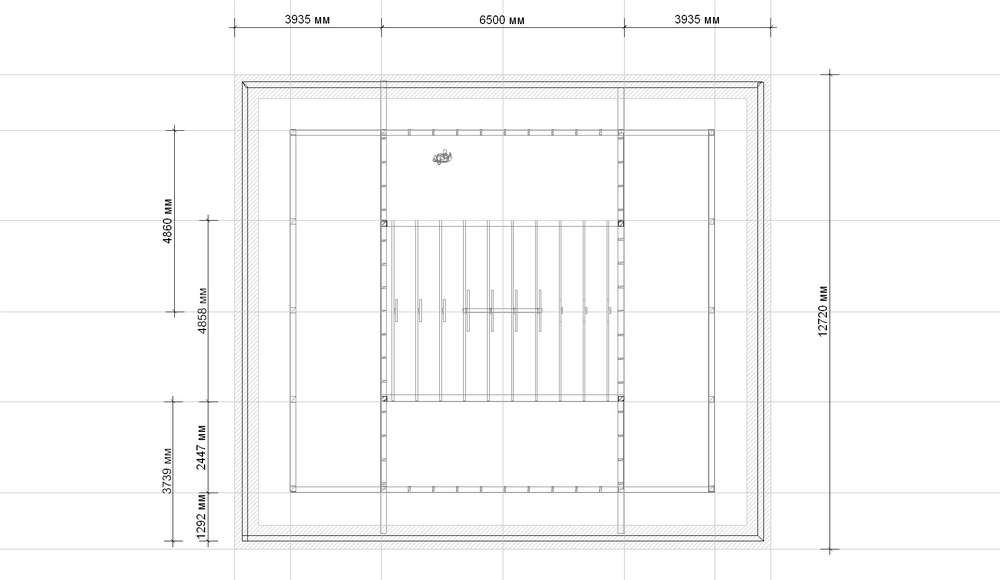
[B] Но у меня вопрос, при использовании "висячки" мы всю нагрузку переносим на лвл брус, нужно ведь просчитать нагрузку?
А это самый интересный вопрос.... Я потому и писал, что не нравится пролёт 6,2-6,3м

По прикилдкам у меня получается больше тонны на погонный метр ЛВЛ.....Даже с опорой под коньком (вариант в нижнем левом углу картинки)....




Цитата:
Какой размер у Вас получился до лвл бруса от пола?
2300мм в черноте...
Миниатюры
Нажмите на изображение для увеличения
Название: Рассчёты.jpg
Просмотров: 1481
Размер:	206.7 Кб
ID:	15479   Нажмите на изображение для увеличения
Название: Размеры2.jpg
Просмотров: 1400
Размер:	104.3 Кб
ID:	15480  
Клямер вне форума   Ответить с цитированием
Пользователь сказал cпасибо:
vovhik74 (11.04.2015)
Ответ


Ваши права в разделе
Вы не можете создавать новые темы
Вы не можете отвечать в темах
Вы не можете прикреплять вложения
Вы не можете редактировать свои сообщения

BB коды Вкл.
Смайлы Вкл.
[IMG] код Вкл.
HTML код Выкл.

Быстрый переход


Текущее время: 19:38. Часовой пояс GMT +3.