В избранное На сайт О компании Услуги Магазин кровли Контакты Наши работы


Проектирование кровли Вопросы, связанные с проектированием крыши. Архитектура и расчеты. Типовые и индивидуальные проекты.

Ответ
 
Опции темы Поиск в этой теме
Старый 29.05.2015, 20:01   #11
vovhik74
Супер консультант
 
Пол: Мужчина
Регистрация: 13.12.2011
Адрес: Челябинск
Сообщений: 802
Images: 13
Сказал(а) спасибо: 531
Поблагодарили: 564 раз(а)
Репутация: 33971

Re: крыша для бани

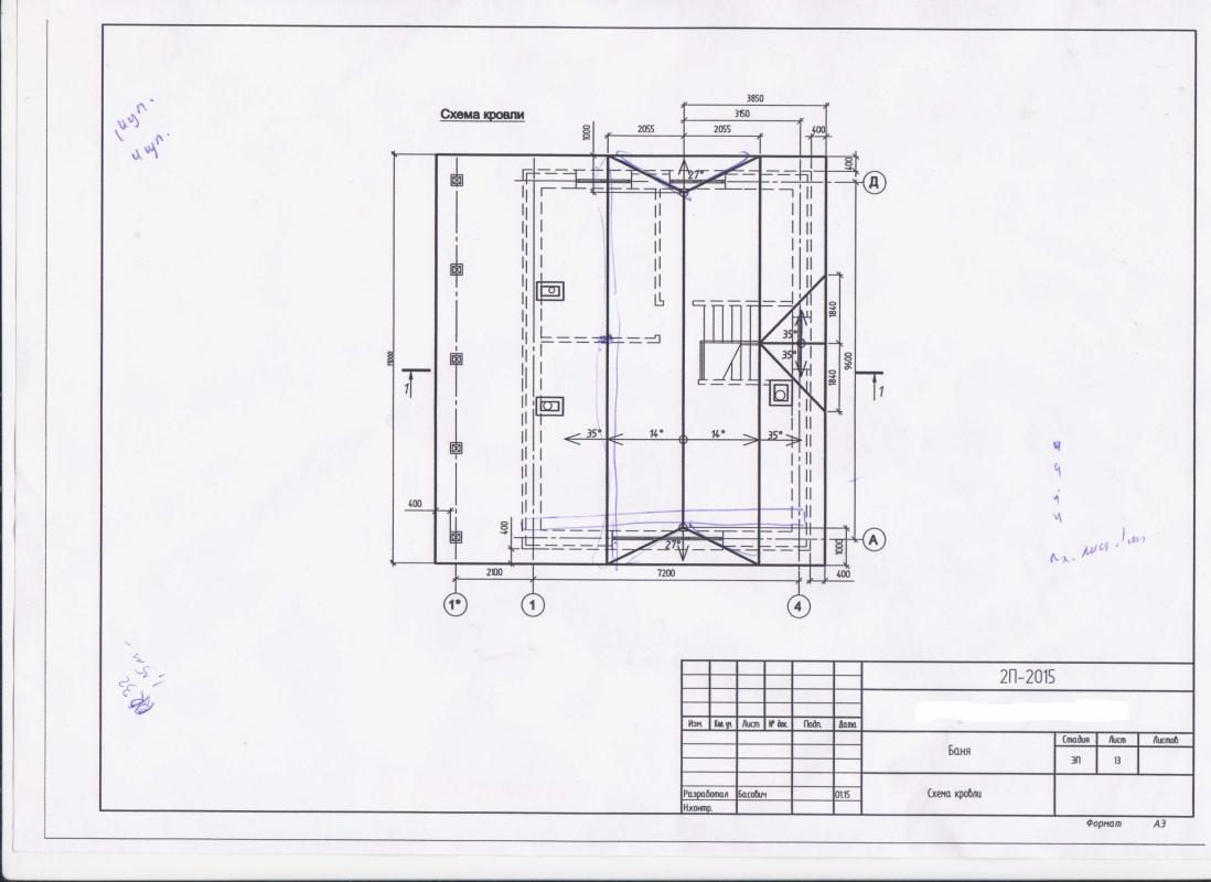
А у нас проекты бань посуровее рисуют.
Миниатюры
Нажмите на изображение для увеличения
Название: Скан_20150529 (2).jpg
Просмотров: 2017
Размер:	73.5 Кб
ID:	15833   Нажмите на изображение для увеличения
Название: Скан_20150529.jpg
Просмотров: 2058
Размер:	95.1 Кб
ID:	15834   Нажмите на изображение для увеличения
Название: Скан_20150529 (3).jpg
Просмотров: 2091
Размер:	68.3 Кб
ID:	15835  
vovhik74 вне форума   Ответить с цитированием
Старый 29.05.2015, 22:46   #12
камран
Монтажник
 
Пол: Мужчина
Регистрация: 16.09.2012
Адрес: Белгород
Сообщений: 986
Сказал(а) спасибо: 1,195
Поблагодарили: 730 раз(а)
Репутация: 17978

Re: крыша для бани

Цитата:
Сообщение от vovhik74 Посмотреть сообщение
А у нас проекты бань посуровее рисуют.
интересно чья инициатива прогоны добавлять? неужели сам проектировщик ручкой дорисовал?
Миниатюры
Нажмите на изображение для увеличения
Название: Скан_20150529.jpg
Просмотров: 1958
Размер:	162.4 Кб
ID:	15836  
камран вне форума   Ответить с цитированием
Старый 30.05.2015, 06:08   #13
vovhik74
Супер консультант
 
Пол: Мужчина
Регистрация: 13.12.2011
Адрес: Челябинск
Сообщений: 802
Images: 13
Сказал(а) спасибо: 531
Поблагодарили: 564 раз(а)
Репутация: 33971

Re: крыша для бани

Цитата:
Сообщение от камран Посмотреть сообщение
интересно чья инициатива прогоны добавлять? неужели сам проектировщик ручкой дорисовал?
Это уже наши мысли вслух. Верхний перелом там ни к чему. Вся система висячая. Если сделать двухскатку то вроде все сходится. А наслонку проблематично.
vovhik74 вне форума   Ответить с цитированием
Старый 30.05.2015, 20:47   #14
камран
Монтажник
 
Пол: Мужчина
Регистрация: 16.09.2012
Адрес: Белгород
Сообщений: 986
Сказал(а) спасибо: 1,195
Поблагодарили: 730 раз(а)
Репутация: 17978

Re: крыша для бани

Цитата:
Сообщение от vovhik74 Посмотреть сообщение
Это уже наши мысли вслух.
да я так и понял...

Цитата:
Сообщение от vovhik74 Посмотреть сообщение
А наслонку проблематично.
а в чем проблема?
камран вне форума   Ответить с цитированием
Старый 31.05.2015, 14:56   #15
vovhik74
Супер консультант
 
Пол: Мужчина
Регистрация: 13.12.2011
Адрес: Челябинск
Сообщений: 802
Images: 13
Сказал(а) спасибо: 531
Поблагодарили: 564 раз(а)
Репутация: 33971

Re: крыша для бани

Цитата:
Сообщение от камран Посмотреть сообщение
а в чем проблема?
Проблема в проекте. По проекту висячка шарнирная(если так можно выразится). В таком виде как в проекте ее не исполнить. Вот и думаю в наслонку превратить. Прогоны по 9.60 получаются. Но вроде нашел куда две стойки воткнуть. Будем дальше додумывать.
vovhik74 вне форума   Ответить с цитированием
Старый 31.05.2015, 17:54   #16
камран
Монтажник
 
Пол: Мужчина
Регистрация: 16.09.2012
Адрес: Белгород
Сообщений: 986
Сказал(а) спасибо: 1,195
Поблагодарили: 730 раз(а)
Репутация: 17978

Re: крыша для бани

Цитата:
Сообщение от vovhik74 Посмотреть сообщение
Но вроде нашел куда две стойки воткнуть
интересно куда? я не вижу куда можно...
я бы предложил вариант как на картинке если не ломанная двускатка будет. опят же прогон попадает на окна фронтонные. потому и на тех окнах перемычки должны быть несущими.
или вместо деревянной фермы можно металлический двутавр положит... в принципе не важно как, но я всегда за "наслонку".
Миниатюры
Нажмите на изображение для увеличения
Название: вар-2.jpg
Просмотров: 1979
Размер:	129.0 Кб
ID:	15837  
камран вне форума   Ответить с цитированием
Старый 31.05.2015, 18:54   #17
vovhik74
Супер консультант
 
Пол: Мужчина
Регистрация: 13.12.2011
Адрес: Челябинск
Сообщений: 802
Images: 13
Сказал(а) спасибо: 531
Поблагодарили: 564 раз(а)
Репутация: 33971

Re: крыша для бани

Отметил на рисунке кружочками.
Миниатюры
Нажмите на изображение для увеличения
Название: вар-2.jpg
Просмотров: 1931
Размер:	79.6 Кб
ID:	15838  
vovhik74 вне форума   Ответить с цитированием
Старый 31.05.2015, 19:11   #18
камран
Монтажник
 
Пол: Мужчина
Регистрация: 16.09.2012
Адрес: Белгород
Сообщений: 986
Сказал(а) спасибо: 1,195
Поблагодарили: 730 раз(а)
Репутация: 17978

Re: крыша для бани

Цитата:
Сообщение от vovhik74 Посмотреть сообщение
Отметил на рисунке кружочками
так это с двумя прогонами. я подумал под центральный прогон две стойки...
а сами прогоны из чего?
камран вне форума   Ответить с цитированием
Старый 31.05.2015, 20:56   #19
vovhik74
Супер консультант
 
Пол: Мужчина
Регистрация: 13.12.2011
Адрес: Челябинск
Сообщений: 802
Images: 13
Сказал(а) спасибо: 531
Поблагодарили: 564 раз(а)
Репутация: 33971

Re: крыша для бани

Цитата:
Сообщение от камран Посмотреть сообщение
так это с двумя прогонами. я подумал под центральный прогон две стойки...
а сами прогоны из чего?
Пока не знаю. Но скорее всего лвл-брус.
vovhik74 вне форума   Ответить с цитированием
Ответ


Ваши права в разделе
Вы не можете создавать новые темы
Вы не можете отвечать в темах
Вы не можете прикреплять вложения
Вы не можете редактировать свои сообщения

BB коды Вкл.
Смайлы Вкл.
[IMG] код Вкл.
HTML код Выкл.

Быстрый переход


Текущее время: 19:13. Часовой пояс GMT +3.