В избранное На сайт О компании Услуги Магазин кровли Контакты Наши работы


Проектирование кровли Вопросы, связанные с проектированием крыши. Архитектура и расчеты. Типовые и индивидуальные проекты.

Ответ
 
Опции темы Поиск в этой теме
Старый 12.07.2016, 19:30   #1
derner
Новичок
 
Пол: Мужчина
Регистрация: 12.07.2016
Сообщений: 5
Сказал(а) спасибо: 6
Поблагодарили: 0 раз(а)
Репутация: 10

Вентилируемый конек или аэраторы

Приветствую!
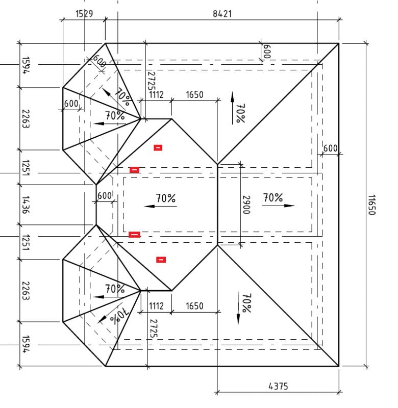
Прошу дать совет, планирую строить кровлю, холодный чердак, покрытие мягкая черепица. планируется вентилируемый конёк и четыре аэратора по расположенные по скатам кровли близко к коньку.
Так вот вопрос в следующем, есть смысл в моём случае устанавливать аэраторы на скатах кровли, или можно ограничится вентилируемым коньком?
Вложения
Тип файла: pdf план кровли.pdf (53.6 Кб, 1516 просмотров)
derner вне форума   Ответить с цитированием
Старый 12.07.2016, 23:22   #2
DRAGOFOL
Супер консультант
 
Аватар для DRAGOFOL
 
Регистрация: 11.11.2011
Сообщений: 1,736
Images: 24
Сказал(а) спасибо: 1,124
Поблагодарили: 970 раз(а)
Репутация: 40367

Re: Вентилируемый конек или аэраторы

Аэраторы надо ставить вдоль ендов для притока воздуха в подкровельное пространство.
На такой крыше вентилируемыми рекомендую делать не только коньки, но и хребты (рёбра).
Миниатюры
Нажмите на изображение для увеличения
Название: план кровли.jpg
Просмотров: 2164
Размер:	71.2 Кб
ID:	18410  
__________________
Надёжность крыши определяется её самым слабым местом...
DRAGOFOL вне форума   Ответить с цитированием
Пользователь сказал cпасибо:
derner (13.07.2016)
Старый 13.07.2016, 06:08 Автор темы
  #3
derner
Новичок
 
Пол: Мужчина
Регистрация: 12.07.2016
Сообщений: 5
Сказал(а) спасибо: 6
Поблагодарили: 0 раз(а)
Репутация: 10

Re: Вентилируемый конек или аэраторы

Спасибо за развёрнутый ответ.
Подскажите есть смысл класть гидроизоляцию под данную кровлю?

Крыша холодный чердак, не утеплена, покрытие мягкая черепица.
derner вне форума   Ответить с цитированием
Старый 13.07.2016, 22:05   #4
DRAGOFOL
Супер консультант
 
Аватар для DRAGOFOL
 
Регистрация: 11.11.2011
Сообщений: 1,736
Images: 24
Сказал(а) спасибо: 1,124
Поблагодарили: 970 раз(а)
Репутация: 40367

Re: Вентилируемый конек или аэраторы

Если чердачное пространство хорошо проветривается, то без подкровельной гидроизоляционной плёнки не должно быть никаких проблем. Поверх утеплителя, лежащего на перекрытии, достаточно уложить нетканый материал или недорогую ветрозащитную плёнку.

Но если будет слабое проветривание, то локально может подкапывать конденсат с торчащих гвоздей.
Миниатюры
Нажмите на изображение для увеличения
Название: Frost-in-attic-2.jpg
Просмотров: 1965
Размер:	124.6 Кб
ID:	18412   Нажмите на изображение для увеличения
Название: 4618876614.jpg
Просмотров: 2032
Размер:	119.1 Кб
ID:	18413  
__________________
Надёжность крыши определяется её самым слабым местом...
DRAGOFOL вне форума   Ответить с цитированием
2 пользователя(ей) сказали cпасибо:
derner (13.07.2016), vovhik74 (14.07.2016)
Старый 14.07.2016, 23:19 Автор темы
  #5
derner
Новичок
 
Пол: Мужчина
Регистрация: 12.07.2016
Сообщений: 5
Сказал(а) спасибо: 6
Поблагодарили: 0 раз(а)
Репутация: 10

Re: Вентилируемый конек или аэраторы

DRAGOFOL, спасибо за столь развёрнутый ответ!

Как показано на фото допускается крепление гидроизоляции под мягкую кровлю?
Миниатюры
Нажмите на изображение для увеличения
Название: 2016-07-14_23-16-10.jpg
Просмотров: 1846
Размер:	68.8 Кб
ID:	18417  
derner вне форума   Ответить с цитированием
Старый 15.07.2016, 02:59   #6
Neewel
Супер консультант
 
Пол: Мужчина
Регистрация: 27.10.2012
Адрес: Никополь
Сообщений: 583
Сказал(а) спасибо: 294
Поблагодарили: 312 раз(а)
Репутация: 34433

Re: Вентилируемый конек или аэраторы

Цитата:
Сообщение от derner Посмотреть сообщение
Как показано на фото допускается крепление гидроизоляции под мягкую кровлю?
Это кто-то поизвращался, так делают люди, которые на ставке. Под металл можно, под гибкую нежелательно - надо делать промежутки в контрбрусе, чтобы воздух свободно гулял. У Вас на фото контрбрусом выступает стропило, пропиливать его что-ли? Стропило я бы под дулом даже не трогал
Neewel вне форума   Ответить с цитированием
3 пользователя(ей) сказали cпасибо:
derner (15.07.2016), DRAGOFOL (15.07.2016), Lex (15.07.2016)
Старый 15.07.2016, 12:00   #7
Lex
Administrator
 
Аватар для Lex
 
Пол: Мужчина
Регистрация: 24.01.2005
Адрес: Троицк, Москва
Сообщений: 6,560
Images: 75
Сказал(а) спасибо: 2,152
Поблагодарили: 1,034 раз(а)
Репутация: 39564

Отправить сообщение для Lex с помощью ICQ Отправить сообщение для Lex с помощью Skype™
Re: Вентилируемый конек или аэраторы

Цитата:
Сообщение от Neewel Посмотреть сообщение
У Вас на фото контрбрусом выступает стропило, пропиливать его что-ли? Стропило я бы под дулом даже не трогал
Да, странная, сомнительная технология. Даже не предполагал такую.
__________________
Консультации по строительству теплой мансардной крыши alex385@yandex.ru

ДЛЯ ДОСТУПА В ЗАКРЫТЫЙ РАЗДЕЛ ПИШИТЕ НА tatka385@yandex.ru
Lex вне форума   Ответить с цитированием
Пользователь сказал cпасибо:
derner (15.07.2016)
Старый 15.07.2016, 20:13   #8
ben
Ветеран сообщества
 
Аватар для ben
 
Пол: Мужчина
Регистрация: 13.10.2008
Адрес: Украина
Сообщений: 2,414
Images: 8
Сказал(а) спасибо: 419
Поблагодарили: 970 раз(а)
Репутация: 48684

Отправить сообщение для ben с помощью Skype™
Re: Вентилируемый конек или аэраторы

До изжоги знакомый проект.
ben вне форума   Ответить с цитированием
Старый 15.07.2016, 21:45   #9
DRAGOFOL
Супер консультант
 
Аватар для DRAGOFOL
 
Регистрация: 11.11.2011
Сообщений: 1,736
Images: 24
Сказал(а) спасибо: 1,124
Поблагодарили: 970 раз(а)
Репутация: 40367

Re: Вентилируемый конек или аэраторы

Такой монтаж допускается (тем более, что аналогичный монтаж показан даже на американском сайте производителя) на крышах простой формы - без ендов.
Но я не вижу ни одного плюса такой технологии для кровельщика и заказчика.
Для продавца есть плюс - повышенный расход и заработок ))
__________________
Надёжность крыши определяется её самым слабым местом...
DRAGOFOL вне форума   Ответить с цитированием
Пользователь сказал cпасибо:
Lex (18.07.2016)
Старый 20.07.2016, 14:15   #10
Sunduk
Супер консультант
 
Аватар для Sunduk
 
Пол: Мужчина
Регистрация: 27.02.2006
Адрес: Москва
Сообщений: 674
Images: 22
Сказал(а) спасибо: 364
Поблагодарили: 63 раз(а)
Репутация: 7447

Re: Вентилируемый конек или аэраторы

Цитата:
Сообщение от DRAGOFOL Посмотреть сообщение
Такой монтаж допускается (тем более, что аналогичный монтаж показан даже на американском сайте производителя) на крышах простой формы - без ендов.
Позвольте спросить. Ендова разве мешает, выполнению кровельного пирога по данной технологии?
Sunduk вне форума   Ответить с цитированием
Ответ


Ваши права в разделе
Вы не можете создавать новые темы
Вы не можете отвечать в темах
Вы не можете прикреплять вложения
Вы не можете редактировать свои сообщения

BB коды Вкл.
Смайлы Вкл.
[IMG] код Вкл.
HTML код Выкл.

Быстрый переход


Текущее время: 21:30. Часовой пояс GMT +3.