В избранное На сайт О компании Услуги Магазин кровли Контакты Наши работы


Мансардная кровля(теплая крыша) Доступ к разделу платный. Сделать запрос tatka385@yandex.ru Обсуждаем теплые крыши. Виды мансардных материалов, технологии теплой кровли, обзоры, советы и рекомендации

Ответ
 
Опции темы Поиск в этой теме
Старый 02.04.2011, 10:20 Автор темы
  #11
электрошок
Новичок
 
Аватар для электрошок
 
Регистрация: 27.03.2011
Сообщений: 21
Сказал(а) спасибо: 0
Поблагодарили: 0 раз(а)
Репутация: 10

Re: Хочу сделать мансардную крышу

Цитата:
Сообщение от poison&son Посмотреть сообщение
трошок</b>, все миниатюры одного и того же дома , а то размеры не сходятся
На выступающей части хочу сделать типа балкончика.
электрошок вне форума   Ответить с цитированием
Старый 02.04.2011, 10:25 Автор темы
  #12
электрошок
Новичок
 
Аватар для электрошок
 
Регистрация: 27.03.2011
Сообщений: 21
Сказал(а) спасибо: 0
Поблагодарили: 0 раз(а)
Репутация: 10

Re: Хочу сделать мансардную крышу

Цитата:
лучше закажите в кровельной фирме расчет материала и работ он стоит всего лишь от 1000р
Если так не дорого попробую обратится к спецам.Может кто посоветовать таких в Самаре.
электрошок вне форума   Ответить с цитированием
Старый 02.04.2011, 14:03 Автор темы
  #13
электрошок
Новичок
 
Аватар для электрошок
 
Регистрация: 27.03.2011
Сообщений: 21
Сказал(а) спасибо: 0
Поблагодарили: 0 раз(а)
Репутация: 10

Re: Хочу сделать мансардную крышу

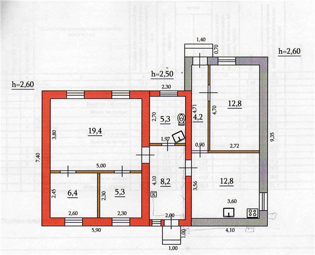
Вот копия с документов со всеми точными размерами и несущими стенами .По таким данным мне сможет кто помочь?Готов оплатить работу ,может на форуме найдётся кто из Самары?
Миниатюры
Нажмите на изображение для увеличения
Название: 9ac2239ca4de.jpg
Просмотров: 1252
Размер:	59.9 Кб
ID:	2773  
электрошок вне форума   Ответить с цитированием
Старый 09.04.2011, 11:25   #14
ben
Ветеран сообщества
 
Аватар для ben
 
Пол: Мужчина
Регистрация: 13.10.2008
Адрес: Украина
Сообщений: 2,414
Images: 8
Сказал(а) спасибо: 419
Поблагодарили: 970 раз(а)
Репутация: 48684

Отправить сообщение для ben с помощью Skype™
Re: Хочу сделать мансардную крышу

ну, и что нужно? Посчитать материалы и проектик сделать? Ну, я могу...
ben вне форума   Ответить с цитированием
Старый 09.04.2011, 12:14 Автор темы
  #15
электрошок
Новичок
 
Аватар для электрошок
 
Регистрация: 27.03.2011
Сообщений: 21
Сказал(а) спасибо: 0
Поблагодарили: 0 раз(а)
Репутация: 10

Re: Хочу сделать мансардную крышу

Так я смотрю здесь все могут но не хотят.
электрошок вне форума   Ответить с цитированием
Старый 09.04.2011, 13:54   #16
ben
Ветеран сообщества
 
Аватар для ben
 
Пол: Мужчина
Регистрация: 13.10.2008
Адрес: Украина
Сообщений: 2,414
Images: 8
Сказал(а) спасибо: 419
Поблагодарили: 970 раз(а)
Репутация: 48684

Отправить сообщение для ben с помощью Skype™
Re: Хочу сделать мансардную крышу

А что не хотят? Просто на форуме выкладывать работу, которая занимает плотных 2-3 дня? Эскизный рисунок с приблизительной сметой и расчетами?

Тут в смете только на кровлю, подшиву и водосток позиций 40, а то и больше. Кроме того, тип кровли вы определились окончательно?
ben вне форума   Ответить с цитированием
Старый 05.08.2011, 14:03 Автор темы
  #17
электрошок
Новичок
 
Аватар для электрошок
 
Регистрация: 27.03.2011
Сообщений: 21
Сказал(а) спасибо: 0
Поблагодарили: 0 раз(а)
Репутация: 10

Re: Хочу сделать мансардную крышу

Ну вот и построил я мансарду.,теперь вопросы про материалы на утеплитель и паро - гидро изоляцию .Какие лучше ,соотношение цена - качество.
Миниатюры
Нажмите на изображение для увеличения
Название: DSCN1022.jpg
Просмотров: 1301
Размер:	58.7 Кб
ID:	3128   Нажмите на изображение для увеличения
Название: DSCN0971.jpg
Просмотров: 1278
Размер:	81.3 Кб
ID:	3129  
электрошок вне форума   Ответить с цитированием
Старый 05.08.2011, 15:45   #18
gavrosh
Консультант
 
Пол: Мужчина
Регистрация: 20.05.2006
Сообщений: 1,602
Images: 21
Сказал(а) спасибо: 125
Поблагодарили: 318 раз(а)
Репутация: 35438

Re: Хочу сделать мансардную крышу

Цитата:
Сообщение от электрошок Посмотреть сообщение
Ну вот и построил я мансарду.,теперь вопросы про материалы на утеплитель и паро - гидро изоляцию .Какие лучше ,соотношение цена - качество.
А это что, временная кровля из профнастила или уже капитальная?
gavrosh вне форума   Ответить с цитированием
Старый 05.08.2011, 15:52   #19
Bichek
Специалист
 
Аватар для Bichek
 
Регистрация: 26.04.2007
Сообщений: 220
Сказал(а) спасибо: 114
Поблагодарили: 21 раз(а)
Репутация: 1656

Re: Хочу сделать мансардную крышу

Цитата:
Сообщение от электрошок Посмотреть сообщение
Ну вот и построил я мансарду.,теперь вопросы про материалы на утеплитель и паро - гидро изоляцию .Какие лучше ,соотношение цена - качество.
А где контробрешетник, где гидроизоляционная пленка?
Bichek вне форума   Ответить с цитированием
Старый 05.08.2011, 16:06 Автор темы
  #20
электрошок
Новичок
 
Аватар для электрошок
 
Регистрация: 27.03.2011
Сообщений: 21
Сказал(а) спасибо: 0
Поблагодарили: 0 раз(а)
Репутация: 10

Re: Хочу сделать мансардную крышу

Не надо вопросов ,вы расскажите что и как делать дальше .

Цитата:
Сообщение от gavrosh Посмотреть сообщение
А это что, временная кровля из профнастила или уже капитальная?
Почему временная ,помоему и по фото видно что капитальная..
электрошок вне форума   Ответить с цитированием
Ответ


Ваши права в разделе
Вы не можете создавать новые темы
Вы не можете отвечать в темах
Вы не можете прикреплять вложения
Вы не можете редактировать свои сообщения

BB коды Вкл.
Смайлы Вкл.
[IMG] код Вкл.
HTML код Выкл.

Быстрый переход


Текущее время: 14:54. Часовой пояс GMT +3.