В избранное На сайт О компании Услуги Магазин кровли Контакты Наши работы


Мансардная кровля(теплая крыша) Доступ к разделу платный. Сделать запрос tatka385@yandex.ru Обсуждаем теплые крыши. Виды мансардных материалов, технологии теплой кровли, обзоры, советы и рекомендации

Ответ
 
Опции темы Поиск в этой теме
Старый 27.03.2011, 22:22   #1
электрошок
Новичок
 
Аватар для электрошок
 
Регистрация: 27.03.2011
Сообщений: 21
Сказал(а) спасибо: 0
Поблагодарили: 0 раз(а)
Репутация: 10

Хочу сделать мансардную крышу

Хочу сделать мансардную крышу ,где в Самаре найти специалистов ,или бригаду умеющих это сделать людей.Я в общем то сам с руками ,но тут нужны знания дела и не один человек .Куда можно обратится ,качественно и не дорого желательно.Интересует больше перекрытие (каркас),внутреннее справимся своими силами.
электрошок вне форума   Ответить с цитированием
Старый 28.03.2011, 11:48   #2
gavrosh
Консультант
 
Пол: Мужчина
Регистрация: 20.05.2006
Сообщений: 1,602
Images: 21
Сказал(а) спасибо: 125
Поблагодарили: 318 раз(а)
Репутация: 35438

Re: Хочу сделать мансардную крышу

А что в Самаре нет ни одной кровельной компании?
gavrosh вне форума   Ответить с цитированием
Старый 28.03.2011, 20:44 Автор темы
  #3
электрошок
Новичок
 
Аватар для электрошок
 
Регистрация: 27.03.2011
Сообщений: 21
Сказал(а) спасибо: 0
Поблагодарили: 0 раз(а)
Репутация: 10

Re: Хочу сделать мансардную крышу

Скорей всего есть .Вот и надеялся что может кто подскажет к кому лучше обратится или есть опыт в этом деле.
электрошок вне форума   Ответить с цитированием
Старый 30.03.2011, 11:35   #4
Алекс.
Супер консультант
 
Аватар для Алекс.
 
Регистрация: 18.02.2010
Сообщений: 1,321
Сказал(а) спасибо: 244
Поблагодарили: 168 раз(а)
Репутация: 25122

Re: Хочу сделать мансардную крышу

Вышлите размеры коробки и свои пожелания в плане кровельного покрытия. И укажите свой электронный адрес. Мы для этого и общаемся, чтобы помогать людям.
Алекс. вне форума   Ответить с цитированием
Старый 30.03.2011, 12:47 Автор темы
  #5
электрошок
Новичок
 
Аватар для электрошок
 
Регистрация: 27.03.2011
Сообщений: 21
Сказал(а) спасибо: 0
Поблагодарили: 0 раз(а)
Репутация: 10

Re: Хочу сделать мансардную крышу

Цитата:
Сообщение от chmir Посмотреть сообщение
Вышлите размеры коробки и свои пожелания в плане кровельного покрытия. И укажите свой электронный адрес. Мы для этого и общаемся, чтобы помогать людям.
Заранее спасибо!Я так же поступаю на автомобильных форумах(автоэлектрик),как промеряю вышлю размеры.
электрошок вне форума   Ответить с цитированием
Старый 30.03.2011, 21:25 Автор темы
  #6
электрошок
Новичок
 
Аватар для электрошок
 
Регистрация: 27.03.2011
Сообщений: 21
Сказал(а) спасибо: 0
Поблагодарили: 0 раз(а)
Репутация: 10

Re: Хочу сделать мансардную крышу

Нарисовал как мог .У меня с проводами лучше получается.
Миниатюры
Нажмите на изображение для увеличения
Название: Безымянный.jpg
Просмотров: 1336
Размер:	19.0 Кб
ID:	2766   Нажмите на изображение для увеличения
Название: 2.jpg
Просмотров: 1396
Размер:	19.9 Кб
ID:	2767  
электрошок вне форума   Ответить с цитированием
Старый 30.03.2011, 21:47 Автор темы
  #7
электрошок
Новичок
 
Аватар для электрошок
 
Регистрация: 27.03.2011
Сообщений: 21
Сказал(а) спасибо: 0
Поблагодарили: 0 раз(а)
Репутация: 10

Re: Хочу сделать мансардную крышу

Да хочу добавить что стена пристройки где канчаеться крыша ниже основной части дома и к стропилам с низу подшит потолок ,и потолок в пристройке наклонный .По этому его не хотелось бы трогать а сделать по верх него .
электрошок вне форума   Ответить с цитированием
Старый 01.04.2011, 21:19 Автор темы
  #8
электрошок
Новичок
 
Аватар для электрошок
 
Регистрация: 27.03.2011
Сообщений: 21
Сказал(а) спасибо: 0
Поблагодарили: 0 раз(а)
Репутация: 10

Re: Хочу сделать мансардную крышу

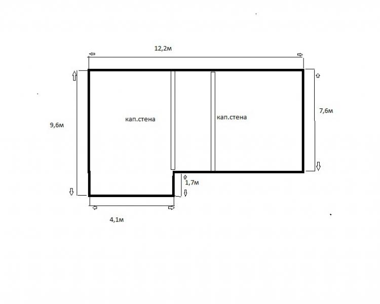
Вот под такой размер может мне кто нибудь накидать проект с выкладкой сколько и каких (дров) нужно ? Плизззops:
Миниатюры
Нажмите на изображение для увеличения
Название: 4.jpg
Просмотров: 1194
Размер:	36.8 Кб
ID:	2770  
электрошок вне форума   Ответить с цитированием
Старый 01.04.2011, 22:47   #9
Sunduk
Супер консультант
 
Аватар для Sunduk
 
Пол: Мужчина
Регистрация: 27.02.2006
Адрес: Москва
Сообщений: 674
Images: 22
Сказал(а) спасибо: 364
Поблагодарили: 63 раз(а)
Репутация: 7447

Re: Хочу сделать мансардную крышу

Цитата:
Сообщение от электрошок Посмотреть сообщение
Вот под такой размер может мне кто нибудь накидать проект с выкладкой сколько и каких (дров)
Здесь в паблике вам вряд ли кто нибудь проект выдаст. Вы уважаемый поймите, что это нужно все ответственно просчитывать, дом не маленький, 6 метровым лесом не обойтись.

Могу сказать, что тип страпил - наслонный. ломанная крыша. На затяжку(пол) пойдет брус 200х100 но с соединением нужно думать. Здесь вопрос - есть ли перегородка внизу какая? Стропила 200х50. Стены мансардной комнаты сделайте из доски 100х50. И стропила и каркас комнаты с шагом 600 - 800.
Не забудьте учесть выпуск на карнизы - их на рисунке нет! Так же учтите, что тип крыши мансардный, а значит, утепление нужно проводить по всем правилам кровельного пирога, с вент-зазорами и правильными пленками. утепление 200мм.
В общем, лучше закажите в кровельной фирме расчет материала и работ он стоит всего лишь от 1000р

Последний раз редактировалось Sunduk; 01.04.2011 в 22:55.
Sunduk вне форума   Ответить с цитированием
Старый 02.04.2011, 06:15   #10
poison&son
Ветеран сообщества
 
Аватар для poison&son
 
Пол: Мужчина
Регистрация: 19.03.2009
Адрес: Волга да Ока
Сообщений: 2,071
Images: 6
Сказал(а) спасибо: 2,586
Поблагодарили: 832 раз(а)
Репутация: 31841

Re: Хочу сделать мансардную крышу

электрошок, все миниатюры одного и того же дома , а то размеры не сходятся
__________________
above us only sky
poison&son вне форума   Ответить с цитированием
Ответ


Ваши права в разделе
Вы не можете создавать новые темы
Вы не можете отвечать в темах
Вы не можете прикреплять вложения
Вы не можете редактировать свои сообщения

BB коды Вкл.
Смайлы Вкл.
[IMG] код Вкл.
HTML код Выкл.

Быстрый переход


Текущее время: 17:07. Часовой пояс GMT +3.