В избранное На сайт О компании Услуги Магазин кровли Контакты Наши работы


Мансардная кровля(теплая крыша) Доступ к разделу платный. Сделать запрос tatka385@yandex.ru Обсуждаем теплые крыши. Виды мансардных материалов, технологии теплой кровли, обзоры, советы и рекомендации

Ответ
 
Опции темы Поиск в этой теме
Старый 23.04.2013, 22:39   #1
Bornikl
Новичок
 
Пол: Мужчина
Регистрация: 22.04.2013
Сообщений: 7
Сказал(а) спасибо: 1
Поблагодарили: 1 раз
Репутация: 11

Помогите по стропильной системе мансарды!

Здравствуйте!

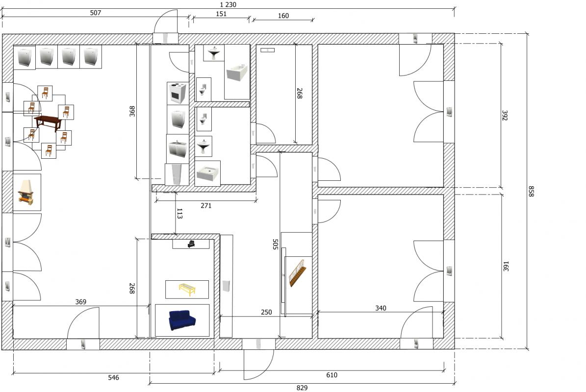
Собираюсь дом построить, сейчас закупаю материалы, Встала проблема по мансарде, хотел поднять стены дома на 1м и висячие стропила,но проблема со средствами надо передумать систему стропил. В доме есть второй свет. Теперь думаю вынести деревянные перекрытия (брус 200Х100) за стену на 0,5 м.Стены мансарды наоборот внутрь на 0,5м отбить стойками и будет 1м почти высота. Но что делать в районе второго света? Там стены мансарды нет и можно отбить стойками по стене, но там нет перекрытий! На картинках план 1 этажа, где стол и камин там второй свет пролёт этого света -4м. Помогите пожалуйста схемой стропильной системы! Стены дома каркас из бруса 100Х100 высотой где-то 2,7 м. Высота отперекрытия 1 этажа до конька - около 3,5м, стропило 5,7 м при варианте вылета за стену на 0,5 м, ширина между стенами 8м, стена 30см.
Спасибо!
Миниатюры
Нажмите на изображение для увеличения
Название: 1 этаж.jpg
Просмотров: 1273
Размер:	101.8 Кб
ID:	9706   Нажмите на изображение для увеличения
Название: 3д-1 этаж-ук.png
Просмотров: 1280
Размер:	14.7 Кб
ID:	9707   Нажмите на изображение для увеличения
Название: домик.jpg
Просмотров: 1148
Размер:	23.9 Кб
ID:	9708  
Bornikl вне форума   Ответить с цитированием
Ответ


Ваши права в разделе
Вы не можете создавать новые темы
Вы не можете отвечать в темах
Вы не можете прикреплять вложения
Вы не можете редактировать свои сообщения

BB коды Вкл.
Смайлы Вкл.
[IMG] код Вкл.
HTML код Выкл.

Быстрый переход


Текущее время: 23:43. Часовой пояс GMT +3.