В избранное На сайт О компании Услуги Магазин кровли Контакты Наши работы


Стропильные системы Схемы, программы, узлы, инструкции, чертежи фотографии. По вопросу доступа обращайтесь к Lex в личном сообщении

Ответ
 
Опции темы Поиск в этой теме
Старый 16.02.2015, 12:20   #1
Denchik
Гость
 
Сообщений: n/a

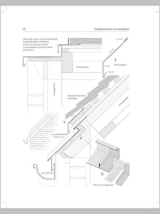
В помощь кровельщику: чертежи узлов

Изображения чертежей узлов. К сожалению, язык заграничный.
Миниатюры
Нажмите на изображение для увеличения
Название: shema_krov1.jpg
Просмотров: 2028
Размер:	34.9 Кб
ID:	14872   Нажмите на изображение для увеличения
Название: shema_krov2.jpg
Просмотров: 1963
Размер:	33.1 Кб
ID:	14873   Нажмите на изображение для увеличения
Название: shema_krov3.jpg
Просмотров: 1998
Размер:	49.3 Кб
ID:	14874   Нажмите на изображение для увеличения
Название: shema_krov4.jpg
Просмотров: 1865
Размер:	28.1 Кб
ID:	14875   Нажмите на изображение для увеличения
Название: shema_krov5.jpg
Просмотров: 1959
Размер:	34.8 Кб
ID:	14876  

Нажмите на изображение для увеличения
Название: shema_krov6.jpg
Просмотров: 1941
Размер:	36.5 Кб
ID:	14877   Нажмите на изображение для увеличения
Название: shema_krov7.jpg
Просмотров: 1985
Размер:	36.7 Кб
ID:	14878   Нажмите на изображение для увеличения
Название: shema_krov8.jpeg
Просмотров: 2134
Размер:	30.7 Кб
ID:	14879   Нажмите на изображение для увеличения
Название: shema_krov9.jpg
Просмотров: 1897
Размер:	27.7 Кб
ID:	14880   Нажмите на изображение для увеличения
Название: shema_krov10.jpg
Просмотров: 2104
Размер:	32.5 Кб
ID:	14881  

Нажмите на изображение для увеличения
Название: shema_krov11.jpg
Просмотров: 1912
Размер:	49.2 Кб
ID:	14882  
  Ответить с цитированием
2 пользователя(ей) сказали cпасибо:
DRAGOFOL (16.02.2015), Lex (16.02.2015)
Ответ

Метки
кровельная система


Ваши права в разделе
Вы не можете создавать новые темы
Вы не можете отвечать в темах
Вы не можете прикреплять вложения
Вы не можете редактировать свои сообщения

BB коды Вкл.
Смайлы Вкл.
[IMG] код Вкл.
HTML код Выкл.

Быстрый переход


Текущее время: 13:33. Часовой пояс GMT +3.