В избранное На сайт О компании Услуги Магазин кровли Контакты Наши работы


Наша работа Описание и фото выполненных работ и дискуссии на свежие темы.

Ответ
 
Опции темы Поиск в этой теме
Старый 29.12.2017, 13:41   #1
ben
Ветеран сообщества
 
Аватар для ben
 
Пол: Мужчина
Регистрация: 13.10.2008
Адрес: Украина
Сообщений: 2,414
Images: 8
Сказал(а) спасибо: 419
Поблагодарили: 970 раз(а)
Репутация: 48684

Отправить сообщение для ben с помощью Skype™
замеряем+проектируем+строим

Дабы оживить раздел.
Еще один дом с черепицей. Делаем по классической схеме:
- замер по чердачному перекрытию;
- проектирование
- составление полной сметы;
- закупка и логистика
- монтаж.
Черепица будет после праздников.
Миниатюры
Нажмите на изображение для увеличения
Название: 101.jpg
Просмотров: 1701
Размер:	102.0 Кб
ID:	20654   Нажмите на изображение для увеличения
Название: 202.JPG
Просмотров: 1699
Размер:	420.3 Кб
ID:	20655   Нажмите на изображение для увеличения
Название: 303.jpg
Просмотров: 1790
Размер:	107.8 Кб
ID:	20656   Нажмите на изображение для увеличения
Название: 404.JPG
Просмотров: 1672
Размер:	422.7 Кб
ID:	20657   Нажмите на изображение для увеличения
Название: 505.JPG
Просмотров: 1663
Размер:	402.1 Кб
ID:	20658  

Нажмите на изображение для увеличения
Название: плс.jpg
Просмотров: 1624
Размер:	406.2 Кб
ID:	20659  
ben вне форума   Ответить с цитированием
4 пользователя(ей) сказали cпасибо:
Filippcha (12.01.2018), Lex (30.12.2017), poison&son (08.01.2018), Сижу на крыше (13.01.2018)
Старый 29.12.2017, 14:57   #2
Neewel
Супер консультант
 
Пол: Мужчина
Регистрация: 27.10.2012
Адрес: Никополь
Сообщений: 583
Сказал(а) спасибо: 294
Поблагодарили: 312 раз(а)
Репутация: 34433

Re: замеряем+проектируем+строим

Цитата:
Сообщение от ben Посмотреть сообщение
Дабы оживить раздел.
Красиво, смотрю вам тоже погода позволяет работать, у меня +11, работаем)
Вопрос - я никогда мауэрлат и прогон не запиливал под стропило, всегда под нож именно стропило шло. Так можно делать и как это объяснить технадзору?
Neewel вне форума   Ответить с цитированием
Старый 29.12.2017, 16:47 Автор темы
  #3
ben
Ветеран сообщества
 
Аватар для ben
 
Пол: Мужчина
Регистрация: 13.10.2008
Адрес: Украина
Сообщений: 2,414
Images: 8
Сказал(а) спасибо: 419
Поблагодарили: 970 раз(а)
Репутация: 48684

Отправить сообщение для ben с помощью Skype™
Re: замеряем+проектируем+строим

Цитата:
Сообщение от Neewel Посмотреть сообщение
Красиво, смотрю вам тоже погода позволяет работать, у меня +11, работаем)
Вопрос - я никогда мауэрлат и прогон не запиливал под стропило, всегда под нож именно стропило шло. Так можно делать и как это объяснить технадзору?
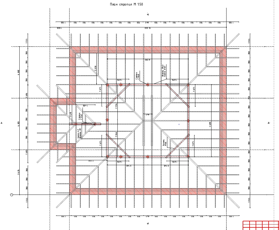
Мауэрлат вполне можно запиливать на глубину где-то 1/4. Прогоны рассчитаны на сечение 100х100, но из-за хреновости леса (геометрия досок для стропил), берем 150х150, там и запилиться можно. Укосные и ендовы, 100х200, обязательно без обзола.
Конечно, если отталкиваться от "прочностного" сечения прогона, то его нельзя запиливать. Но технологически лучше взять с запасом для вот таких моментов, когда проще запилить прогон и выровнять плоскость.
+10, уже не работаем. До 3-го нужно отдыхать)
ben вне форума   Ответить с цитированием
2 пользователя(ей) сказали cпасибо:
Lex (30.12.2017), Neewel (29.12.2017)
Старый 30.12.2017, 18:53   #4
Lex
ОХРИМЕНКО АЛЕКСЕЙ
 
Аватар для Lex
 
Пол: Мужчина
Регистрация: 24.01.2005
Адрес: Троицк, Москва
Сообщений: 6,561
Images: 75
Сказал(а) спасибо: 2,153
Поблагодарили: 1,035 раз(а)
Репутация: 39614

Отправить сообщение для Lex с помощью Skype™
Re: замеряем+проектируем+строим

Цитата:
Сообщение от Neewel Посмотреть сообщение
Красиво, смотрю вам тоже погода позволяет работать, у меня +11, работаем)
И у нас погода позволяет работать Снега нет, дожди да туманы, а на реке сошел лед.

Хороший набор. Валерию понравится фото!

__________________
Форум существует, благодаря поддержке. Проявите добродетель, поддержите форум. Т-Банк https://pay.cloudtips.ru/p/7dfb4787

Оформление доступа в закрытые разделы: https://www.kroi.ru/forum/showthread...8479#post68479
Lex вне форума   Ответить с цитированием
2 пользователя(ей) сказали cпасибо:
DRAGOFOL (08.01.2018), Filippcha (12.01.2018)
Старый 08.01.2018, 19:14   #5
DRAGOFOL
Супер консультант
 
Аватар для DRAGOFOL
 
Регистрация: 11.11.2011
Сообщений: 1,736
Images: 24
Сказал(а) спасибо: 1,124
Поблагодарили: 970 раз(а)
Репутация: 40367

Re: замеряем+проектируем+строим

Спасибо, Алексей, глазу приятно )))
__________________
Надёжность крыши определяется её самым слабым местом...
DRAGOFOL вне форума   Ответить с цитированием
Старый 08.01.2018, 19:25   #6
poison&son
Ветеран сообщества
 
Аватар для poison&son
 
Пол: Мужчина
Регистрация: 19.03.2009
Адрес: Волга да Ока
Сообщений: 2,071
Images: 6
Сказал(а) спасибо: 2,586
Поблагодарили: 832 раз(а)
Репутация: 31841

Re: замеряем+проектируем+строим

ben, таки я не понимаю , а как же опорная площадка , передача нагрузки...?
__________________
above us only sky
poison&son вне форума   Ответить с цитированием
Пользователь сказал cпасибо:
vovhik74 (10.01.2018)
Старый 09.01.2018, 16:36 Автор темы
  #7
ben
Ветеран сообщества
 
Аватар для ben
 
Пол: Мужчина
Регистрация: 13.10.2008
Адрес: Украина
Сообщений: 2,414
Images: 8
Сказал(а) спасибо: 419
Поблагодарили: 970 раз(а)
Репутация: 48684

Отправить сообщение для ben с помощью Skype™
Re: замеряем+проектируем+строим

Не совсем понял
ben вне форума   Ответить с цитированием
Старый 09.01.2018, 21:46 Автор темы
  #8
ben
Ветеран сообщества
 
Аватар для ben
 
Пол: Мужчина
Регистрация: 13.10.2008
Адрес: Украина
Сообщений: 2,414
Images: 8
Сказал(а) спасибо: 419
Поблагодарили: 970 раз(а)
Репутация: 48684

Отправить сообщение для ben с помощью Skype™
Re: замеряем+проектируем+строим

Цитата:
Сообщение от poison&son Посмотреть сообщение
как же опорная площадка , передача нагрузки...?
Опорная площадка куда? Передача нагрузки на что?
ben вне форума   Ответить с цитированием
Пользователь сказал cпасибо:
vovhik74 (10.01.2018)
Старый 10.01.2018, 21:03   #9
vovhik74
Супер консультант
 
Пол: Мужчина
Регистрация: 13.12.2011
Адрес: Челябинск
Сообщений: 802
Images: 13
Сказал(а) спасибо: 531
Поблагодарили: 564 раз(а)
Репутация: 33971

Re: замеряем+проектируем+строим

Цитата:
Сообщение от ben Посмотреть сообщение
Опорная площадка куда? Передача нагрузки на что?
Опорная площадка выпиленной пятки стропил. Передача нагрузки на мауэрлат. Может расскажете про ваш вариант с точки зрения передачи нагрузки от стропил к мауэрлату? И так понимаю вы считаете данную систему безраспорной?
__________________
Видеть легко — трудно предвидеть.
vovhik74 вне форума   Ответить с цитированием
Старый 13.01.2018, 13:15 Автор темы
  #10
ben
Ветеран сообщества
 
Аватар для ben
 
Пол: Мужчина
Регистрация: 13.10.2008
Адрес: Украина
Сообщений: 2,414
Images: 8
Сказал(а) спасибо: 419
Поблагодарили: 970 раз(а)
Репутация: 48684

Отправить сообщение для ben с помощью Skype™
Re: замеряем+проектируем+строим

Мауэрлат выбран 150х150. Я не вижу никакого криминала в выборке 10мм. Система безраспорная, потому мауэрлат работает как балка на супругом основании. Стропило крепят на 2 гвоздя 200х6. Нарожники к укосной гвоздями и шпилька 8 8го класса. Где там распор? Сечения опор с большим запасом. Причина - хреновая геометрия леса. Присутствие опорного столика как раз в том, что так проще вывести плоскость. Шаг стропило и сечение рассчитано по однопролётный схеме.
Зы: уже готовы планки на подшиву. Вечером выложи фото из мастерской, в сборе.
ben вне форума   Ответить с цитированием
2 пользователя(ей) сказали cпасибо:
Filippcha (18.01.2018), vovhik74 (13.01.2018)
Ответ


Ваши права в разделе
Вы не можете создавать новые темы
Вы не можете отвечать в темах
Вы не можете прикреплять вложения
Вы не можете редактировать свои сообщения

BB коды Вкл.
Смайлы Вкл.
[IMG] код Вкл.
HTML код Выкл.

Быстрый переход


Текущее время: 06:19. Часовой пояс GMT +3.